Woolfolk | Carports

Especificaciones Carports

El hogar perfecto para su auto

En Woolfolk, nos esforzamos para proveerle productos de alta calidad que le permitan proteger su automóvil de los efectos dañinos del sol, el calor y la intemperie.

Su auto representa una gran inversión y años de esfuerzo, por lo que en necesario mantenerlo seguro y en buenas condiciones.

Los Carports Woolfolk proporcionan a su auto un espacio económico, eficiente y seguro donde puede conservarse. El que sea económico, no significa que sea feo, o menos confiable, o menos durable. Su Carport se ha diseñado para añadir un toque distintivo y moderno a su hogar, al mismo tiempo que protege a su auto de la lluvia, el sol, el viento, la nieve (en su caso) y el polvo, haciendo lo mismo que una cochera tradicional, pero con menor costo de inversión y mantenimiento.

Los Carports Woolfolk, combinan un diseño único y una apariencia elegante basada en una estructura metálica y de aluminio de alta durabilidad, con un techo de policarbonato de alta densidad y con protección UV, que contribuye a la disminución de la temperatura en el interior del auto.
Por lo anterior, cuando instalas en tu casa un Carport Woolfolk, le estás agregando clase, estilo y valor... Todo al menor precio del mercado.

carport1

Especificaciones técnicas

Dimensiones en metros (m.)
Materiales:
Aluminio (A6063S-T5), Acero (SS400) y Policarbonato

carport2

Vista Aérea

Ancho de techo: 3.0
Longitud: 5.6
Distancia de soportes exterior: 3.0
Distancia de soporte interior: 1.1
Línea de pendiente de techo: 0.7
Línea de caída de agua: 0.6

carport3

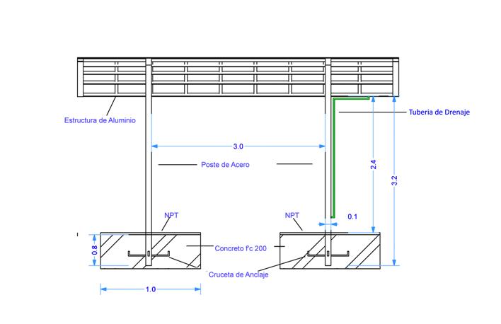
Vista Frontal

Longitud: 5.6 Distancia de soportes exterior: 3.0
Distancia de soporte interior: 1.1
Ancho de poste: 0.1

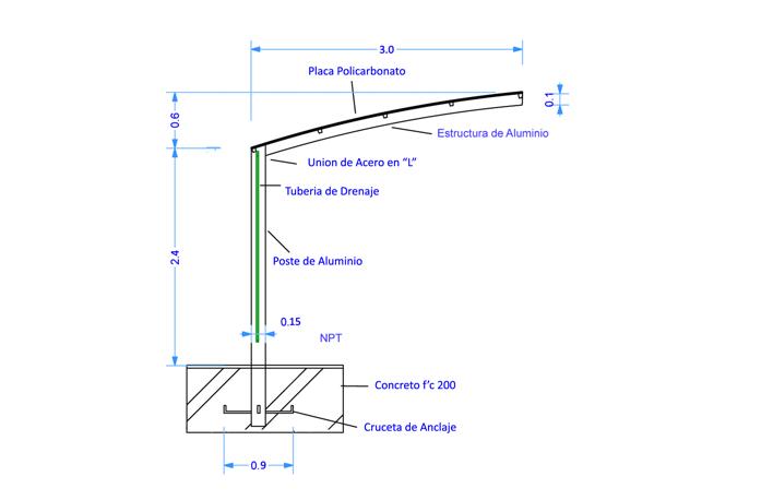
carport4

Vista Lateral

Altura de poste: 2.4
Altura de techo: 0.6
Canal de desagüe: 0.1
Ancho de techo: 0.1
Longitud de viga de soporte: 0.1
Ancho de viga de soporte: 0.1
Ancho de poste: 0.1